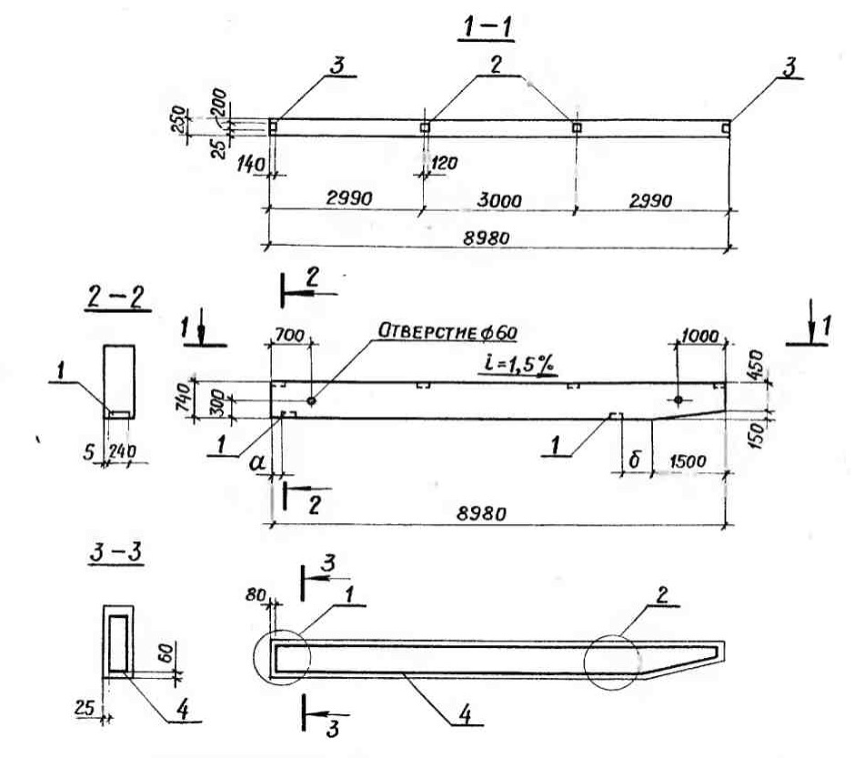
Балка навеса 2БН 6-3 предназначена для использования в строительстве как несущий элемент конструкции навеса. Изготовлена из железобетона, что обеспечивает высокую прочность и долговечность изделия. Балка имеет специальное поперечное сечение, которое обеспечивает оптимальное распределение нагрузок и устойчивость конструкции. Применяется для создания крыши над открытыми площадками, автомобильными стоянками, складами и другими объектами, где необходимо обеспечить защиту от осадков и солнечных лучей.









