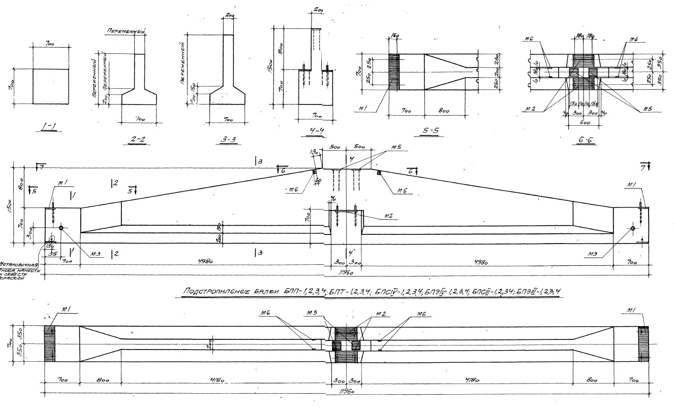
Балка подстропильная БПЭ IV-4 к предназначена для использования в строительстве как несущий элемент кровли. Изготовлена из железобетона, что обеспечивает высокую прочность и долговечность конструкции. Балка имеет специальное пазообразное соединение для удобства монтажа и обеспечения надежности крепления. Идеально подходит для строительства жилых и промышленных зданий, а также других объектов, где необходимо обеспечить надежную защиту от внешних воздействий и обеспечить долговечность конструкции.









