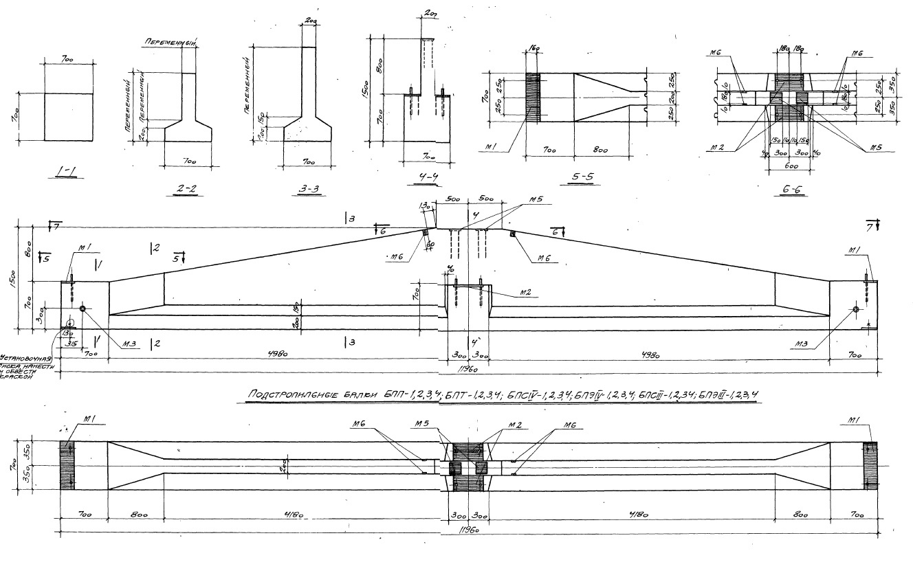
Балка подстропильная БПП 3 представляет собой железобетонный элемент, который используется для укрепления кровли здания. Она обладает высокой прочностью и устойчивостью к различным нагрузкам, что делает ее незаменимым элементом конструкции.
Балка подстропильная БПП 3 применяется в строительстве как основной элемент каркаса кровли. Она используется для создания несущей конструкции, которая обеспечивает устойчивость и надежность всего здания. Балка подстропильная БПП 3 идеально подходит для строительства как жилых, так и коммерческих объектов, где требуется надежная защита от внешних воздействий и сохранение целостности конструкции на протяжении долгого времени.









